Компания ПРОПЛЕКС расширяет ассортимент системы C640-P400, теперь производители окон могут приобрести все необходимые комплектующие для изготовления глухих алюминиевых рам, система C640-P400 расширена следующими позициями (полный состав системы смотрите в Каталоге):
![]() Рама широкая глухая/поворотная арт. С640.35 |
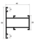
![]() Импост арт. Р400.07 |
![]() Угол 90° 60х60 мм арт. ESQU.02 |
![]() Штапик под стекло арт. Р400.30 |
![]() Соединитель импоста арт. 9ES.80 |
![]() Соединительный уголок рамы арт. SP 1113 |
![]() Уплотнитель притворный/под стекло арт. 9GO.42 |
![]() Уплотнитель стекла полулунный, 2 мм арт. SP2800 |
![]() Уплотнитель стекла полулунный, 3 мм арт. SP2801 |
Также компания ПРОПЛЕКС предлагает оборудование необходимое для изготовления глухих рам из системы С640-P400:
- набор фрез для торца импоста (арт.9МА.93);
- пневматический пресс для отверстий под SP1113 (арт.Р400.42)
Товар уже есть на складе, для заказа обращайтесь к Вашему менеджеру!








